Nordpeis Salzburg L Convection

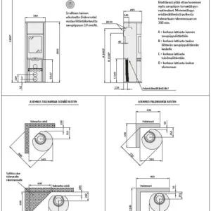
Nordpeis Salzburg L Convection on Nordpeisin keskikokoinen varaava takka kiertoilmatoiminnolla. Usein varaavissa takoissa joutuu odottamaan hetken ennen kuin se alkaa luovuttamaan tehokkaasti lämpöä. Convection -kiertoilmatoiminnon avulla sinun ei tarvitse enää odottaa! Helppokäyttöisen kiertoilmaritilän saa hetkessä auki luovuttamaan lämpöä välittömästi tai suljettua mikäli välittömälle lämmönluovutukselle ei ole tarvetta. Saat siis varaavan- ja kiertoilmatakan hyödyt kätevästi samassa paketissa! Varaavana elementtinä takassa toimii oliviinikivielementit. Helppo laastivapaa asennus on vaivatonta. Salzburg takkojen palamisteknologia on erinomainen, jonka ansiosta puu palaa perusteellisesti pitäen myös päästöt kurissa. Salzburg takkojen lasit pysyvät puhtaina palotilaan puhaltavan kuuman ilman ansiosta. Salzburg sarjaan kuuluu lukuisia takkoja eri kokoisina ja jotkut mallit myös Convection -kiertoilmatoiminnolla: Takan pinta on erikoisbetonia, joka voidaan pinnoittaa asennuksen jälkeen halutulle värisävylle maalaamalla. Näin saat takasta juuri sopivan sinun kotiisi! Salzburg L Convection -varaavaan takkaan on mahdollista saada lisäosia, jotta takasta saadaan juuri sinulle sopiva. Näitä lisäosia ovat mm. korotusosa alle (+B), korotusosa päälle (+1) ja grillisetti. Valitse pudotusvalikosta juuri sinulle sopivat varusteet. Lämmönvarauskyky: 100% 4,4h jälkeen 50% 16,7h jälkeen 25% 27h jälkeen Tekniset mitat löydät sivun alaosasta. Lisävarusteena saatavilla: Asennusohjeet löydät TÄSTÄ Suoritustasoilmoituksen löydät TÄSTÄ
Jatka lukemista
Perushinta: 5 930  sis. alv 25,5%
Lisävalinnat:
Summa:

Hintaluokka: 5 930 € - 6 895 € sis. alv 25,5%

[resursbank_widget]

Osamaksulla tuotteet kotiisi. Katso tästä osamaksun arvioitu kuukausierän määrä. Lue lisää

Soita tästä tuotteesta

Hei! Olisiko sinulla kysyttävää tästä tuotteesta?

Kuvaus

Nordpeis Salzburg L Convection

Korkeus (mm) : 1740, 2168 (+1 korotettuna)
Leveys (mm) : 800
Syvyys (mm) : 567
Hormiliitos : Päältä, Takaa, Sivulta
Paino : 980kg, 1243kg (+1 korotettuna)
Nimellisteho : 2,0kW
Polttopuiden max.pituus : 40cm
Savukanavaliitäntä : Ø 150 mm
Palamisilmaliitäntä : Kyllä
Hyötysuhde : 90%

Lämmönvarauskyky:
100% 4,4h jälkeen
50% 16,7h jälkeen
25% 27h jälkeen


Etsi lähin myymäläsi TÄSTÄ!
Katso TÄSTÄ kuinka Nordpeis-takka sytytetään oikein.

Valmistajan kotisivut

Hei siellä!
Kiinnostaisiko tilata uutiskirjeemme?

Saat sähköpostiisi ajantasaista tietoa:
- Alennuksista
- Kampanjoista
- Tapahtumista

Tietojasi käytetään vain uutiskirjeisiin! Lisätietoa tietosuojaselosteestamme.

Lataa dokumentteja:

Suoritustasoilmoitus

 

Osamaksulla tuotteet kotiisi! Klikkaa itsesi tästä Esimerkkilaskuriin ja vertaile sinulle paras maksuvaihtoehto.