4 880 € sis. alv 25,5%
Hei! Olisiko sinulla kysyttävää tästä tuotteesta?
Höjd 1603 mm
Bredd 560 mm
Djup 452 mm
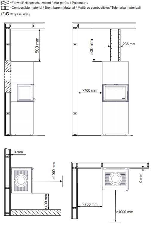
Skorstensanslutning topp, bak
Vikt 233 kg
Anslutningshöjd från topp 1342
Anslutningshöjd bakifrån 1285
Material ShapeStone Light
Effekt 4,5-9 kW
Nominell effekt 5,4 kW
Maximal vedlängd 40 cm
Skorstensdimension Ø 150 mm
Uteluftanslutning Ja
Verkningsgrad 81,9 %
Rökgasens mv. temperatur 196 °C
CO-partiklar i 13 % O2: 0,09
Osamaksulla tuotteet kotiisi! Klikkaa itsesi tästä Esimerkkilaskuriin ja vertaile sinulle paras maksuvaihtoehto.











